Slaměný dům v Ondruškách - dokončení hrubé stavby
- Místo stavby: Ondrušky
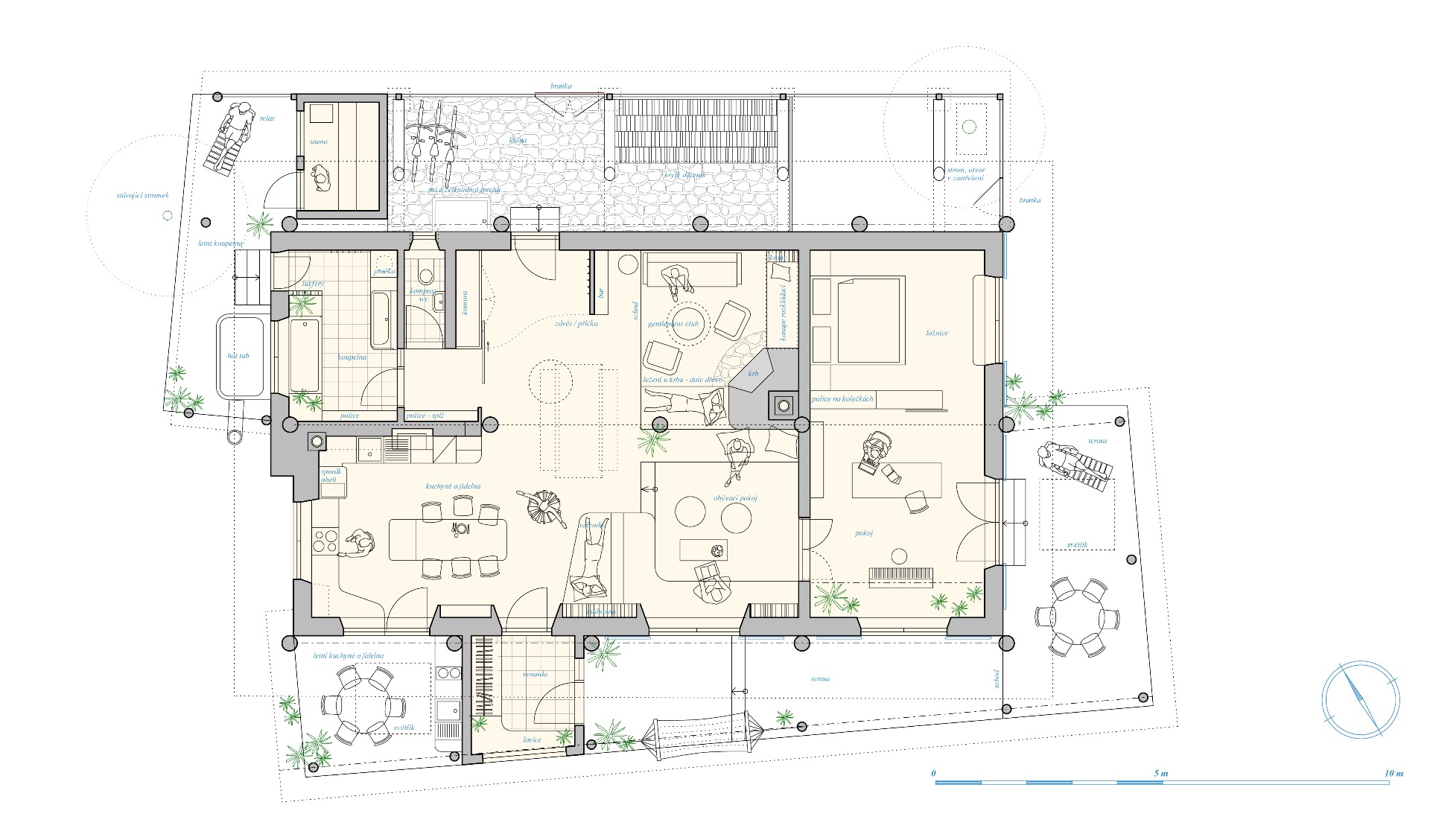
- Užitná plocha: 127,6 m2 + zastřešené terasy 10,7 + 41 + 63,6 m2
- Autor architektonické studie: Ing. Arch. Radek Hála
David s Alicí koupili pěknou zahradu na vysočině s bonusovým rozestavěným slamákem. Dlouho jsme přemýšleli, co s ním. Zbořit a začít znovu a lépe? Zachránit? Taková svérázná bonsai to byla. Po spoustě zatáček a zvratů jsme vyjeli na rovnou trať a padlo rozhodnutí dům dokončit i za cenu přiznaných nedokonalostí (wabi-sabi znáte?). Nakonec se nám z toho vyloupl pěkný "prérijní dům" s asijsky pojatým přechodem mezi terasami a zahradou. Prostor uvnitř svobodně proplouvá do různých koutů - prostorná kuchyně jako místo pro setkání s letním vařením venku, potemnělá jeskyně gentlemanů u krbu, koupelna s velkým oknem nad vanou do zahrady, ložnice s ranním sluncem a prostorná pracovna s výběhem na terasu u rybníčku. Vidíte už před sebou všechna ta rozmarná léta...?
