Slaměný dům v Pravlově
Místo stavby: Pravlov
Orientační náklady: stavba svépomocí 3 mil Kč, stavba na klíč od 5,8 mil Kč (+příslušenství)
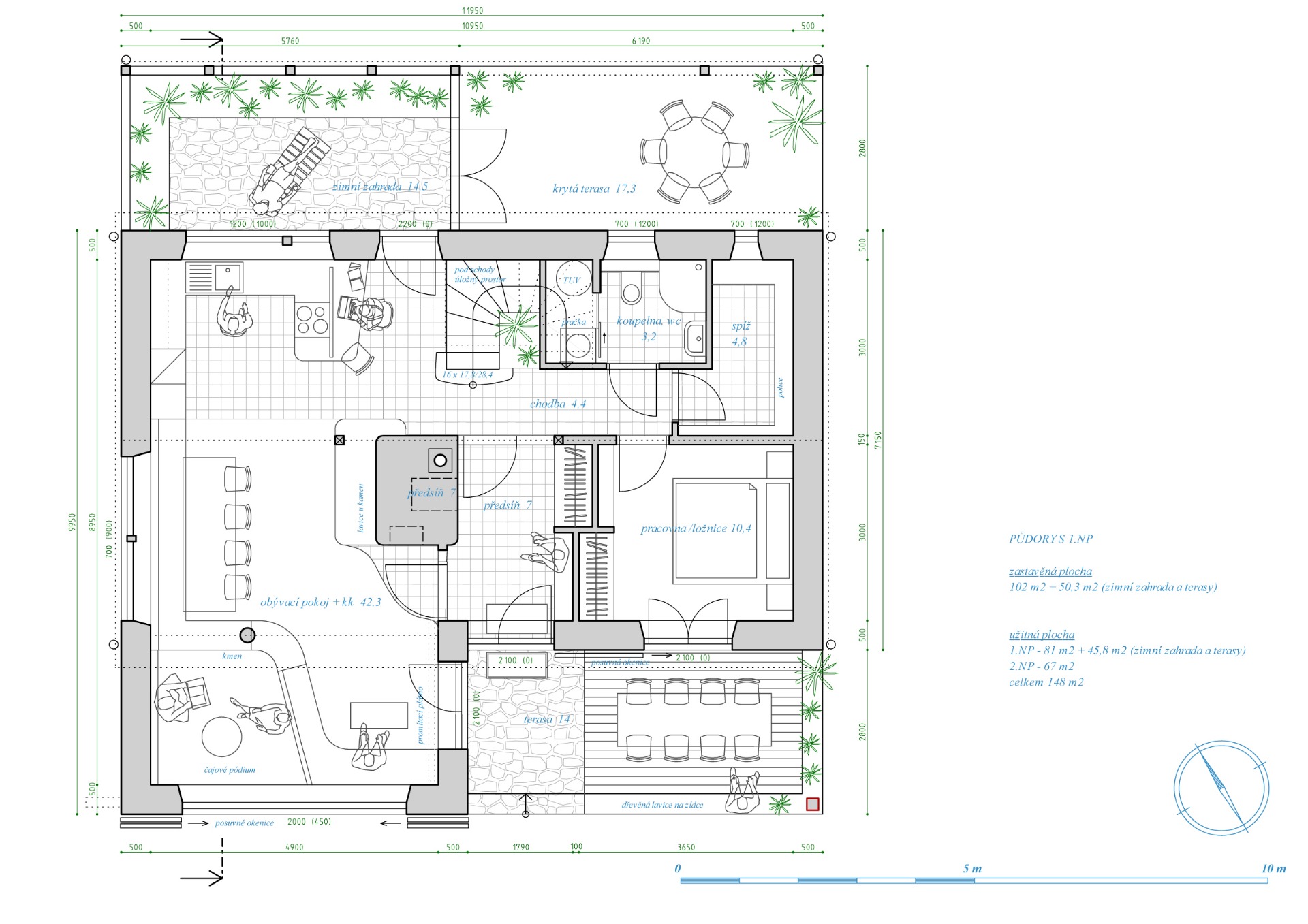
Užitná plocha: 1.NP - 81 m2, 2.NP - 67 m2, celkem 148 m2, zimní zahrada a terasy 45,8 m2
Zastavěná plocha: 102 m2, zimní zahrada a terasy 50,3 m2
Předpokládaná lhůta výstavby: 2 roky, 07/2019-07/2021
Autor architektonické studie: Ing. arch. Radek Hála, spolupráce: Ing. Arch. Petr Mikulášek
Dům bude stát na východním okraji obce Pravlov v rozptýlené zástavbě rodinných domů. Pozemek byl využívaný jako zahrada s několika vzrostlými dřevinami v zadní polovině pozemku. Je mírně svažitý jihozápadním směrem k řece Jihlavě. Dům má půdorys ve tvaru L, hlavní obdélníková část o rozměrech 11,95 x 7,15 m je zastřešena sedlovou střechou se sklonem 30°, vyčnívající část obytného prostoru v jihozápadní stěně má střechu pultovou s extenzivní zelení. Dům je řešen jako dvoupodlažní. Do jižního rohu domu je včleněna terasa, kterou je možné zastřešit shrnovací plátěnou plachtou. Ze severovýchodní strany k domu přiléhá zimní zahrada a krytá terasa. V jihozápadní části pozemku bude sjezd z místní komunikace na pozemek a kryté parkovací stání pro dva osobní automobily. Bude zde stát také zahradní domek/dílna se sedlovou střechou ve sklonu 30°. Před domem je koupací jezírko s čajovým altánem. Elektřina je přivedena přípojkou z el.sítě dodavatele vedené ulicí. Voda je přivedena z obecního vodovodu. Odpadní voda je odváděna do obecní kanalizace a dešťová voda je shromažďována v zahradním jezírku a využita na pozemku pro zálivku zahrady.
Vstup do domu je z jihozápadní strany přes terasu. Vchází se do předsíně, odkud je přístup do obývacího pokoje a chodby. Z chodby vedou dveře do samostatné pracovny/pokoje pro hosty, koupelny s wc, do spíže a vedou odtud schody do druhého patra. Obývací pokoj je propojený s kuchyní v severním rohu místnosti. Kolem kuchyně se vychází přes zimní zahradu na terasu a do zahrady. V jižní prosluněné části je relaxační zóna s čajovým pódiem. Střed obývacího pokoje vyplňují akumulační kamna. Ve patře jsou dva pokoje, ložnice, koupelna a wc. Obytný prostor je příjemně prosvětlený velkým oknem v jihozápadní stěně. Okna jsou stíněna posuvnými okenicemi a okna ve druhém patře venkovními žaluziemi. Kuchyňská linka je osvětlená oknem do zimní zahrady přímo za linkou. Srdcem obývacího pokoje jsou akumulační kamna s lavicí na sezení či ležení.
Podlahy v předsíni, kuchyni, na chodbě, v koupelnách, wc, ve spíži a kolem kamen jsou z keramické dlažby, ostatní z dřevěných palubek. Vnitřní omítky jsou hliněné a venkovní vápenné. Dům je částečně obložený svislým i vodorovným dřevěným obkladem. Sokl domu je obložený kamenem nebo keramickým obkladem. Okna mají dřevěné rámy. Pro povrchovou úpravu dřeva jsou použity přírodní vosky a oleje. Vytápění je zajištěno akumulačními kamny zasahujícími díky hypokaustu i do druhého patra v kombinaci se sálavými panely a el. rohožemi v koupelnách. Ohřev teplé vody bude el. bojlerem 200l s možným napojením na teplovodní výměník z kamen, v budoucnu případně na fotovoltaické panely.
